
Après près de neuf années de procédure et d’expertises, la Ville de Bastia est parvenue à faire reconnaître la responsabilité des désordres graves qui ont touché le cimetière communal de l’Ondina, situé sur les hauteurs de la ville.
Ce site, aménagé entre 2011 et 2013, avait été lourdement sinistré dès sa mise en service. Un premier sinistre est survenu en avril 2013, durant le chantier : une partie du mur M1 , l’ouvrage le plus important qui soutient le parking à l’entrée du site, s’est effondrée. Cette partie du mur M1 effondrée a été reconstruite par la suite. Puis, dès les premiers mois suivant la réception, de nombreux désordres sont survenus sur le site avec l’apparition rapide de tassements, glissements de terrain, fissurations et affaissements compromettant la sécurité de l’ensemble du site.
Dès 2015, la municipalité a engagé une bataille judiciaire pour faire établir les causes de ces dégradations et obtenir réparation.
L’expertise, conduite sous l’autorité du Tribunal Administratif de Bastia par M. Alexandre LAMI, a mis en lumière de graves malfaçons : bétons dilués, ferraillages non conformes, remblais mal compactés et dysfonctionnements dans les réseaux enterrés.
À l’issue de plusieurs années de procédure et d’une médiation entamée en 2021, un protocole d’indemnisation global a été signé en octobre 2023, actant la reconnaissance des responsabilités et l’octroi à la Ville d’une indemnisation de
14 millions d’euros.
Cette décision a permis à la municipalité d’engager, au premier trimestre 2024, un programme de réhabilitation complet du cimetière.
Une étape décisive qui marque la fin d’un long contentieux et l’ouverture d’un nouveau chapitre : celui de la reconstruction et du retour à la sérénité pour de nombreuses familles bastiaises.
Les travaux d’envergure d’un montant avoisinant les 16 M€ HT permettront au plus tard, premier trimestre 2026, de réouvrir à l’ensemble de la population, un site réhabilité et sécurisé et surtout offrir un lieu paisible et adapté au recueillement.

Une nouvelle étape de franchie : la fin des travaux de réparation des murs et l’accessibilité du site rendue aux proches.
Les travaux de confortement des murs de soutènement constituent une étape essentielle du chantier.
Ces interventions, achevées il y a quelques semaines, marquent la stabilisation complète de la structure du site.

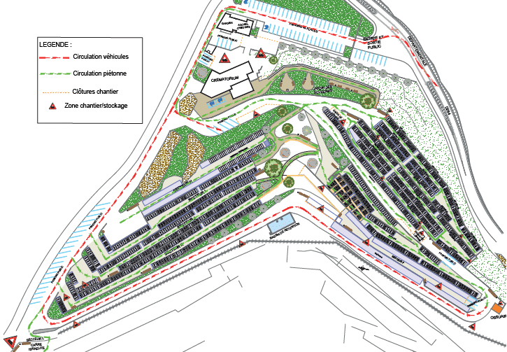
À compter du 31 octobre 2025 au soir, le parking principal situé à l’entrée du cimetière sera rouvert au public. Dans le même temps, l’accès principal du cimetière sera également rouvert, et l’ensemble des allées seront accessibles aux piétons.

La Ville a tenu à ce que ces dispositions soient effectives avant la période de la Toussaint, afin de faciliter le recueillement des familles et de garantir une circulation sécurisée et apaisée au sein du site pendant cette période particulièrement symbolique.
Plan de circulation – Toussaint 2025

Prochaines échéances du chantier

Le chantier entre désormais dans sa phase finale, avec plusieurs étapes à venir :
- Mi-novembre 2025 : repli de la grue, permettant de rétablir la circulation
automobile entre les différents secteurs du cimetière ; - Fin novembre 2025 : achèvement des travaux d’habillage des murs M10,
M13, M18 et M19.
Le mur M13 se situe sur la partie haute de l’aile Nord,
Les murs M10, M18 et M19 ceinturent la partie basse de l’enceinte du cimetière - Novembre – Décembre 2025 : restitution des objets commémoratifs au pied
des concessions, lesquels avaient été préalablement soigneusement consignés. - Novembre 2025 – février 2026 : travaux de finition des allées (pose de
gravillons) et mise en place des pierres de couronnement sur les murs ; - Janvier – février 2026 : campagne de plantations paysagères sur site ;
- Février 2026 : livraison finale de l’opération.


